Komunikat Zakładu Usług Komunalnych
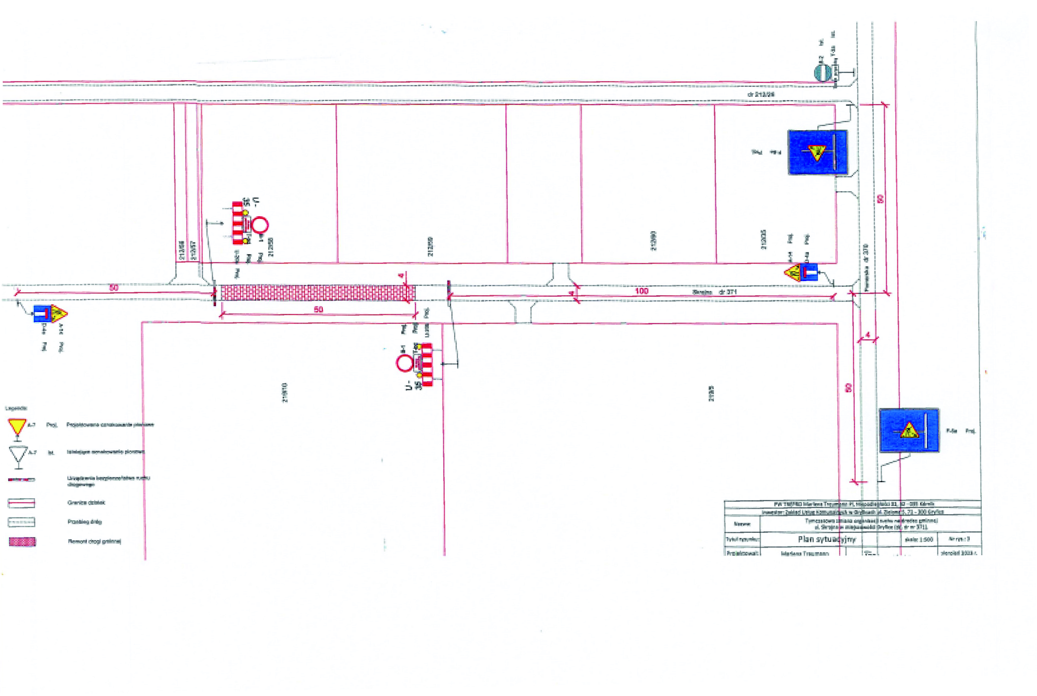
Zakład usług Komunalnych w Gryficach informuje, że w w związku z planowanym remontem drogi ul. Skrajna na odcinku ok. 50 mb i brakiem możliwości wyznaczenia objazdu lub innej drogi drogi dojazdowej w okresie od 28.08.2023 r. do 3.09.2023 r. droga będzie zamknięta - nieprzejezdna na odcinku wskazanym na załączonej mapie, zgodnie z zatwierdzoną a tymczasową organizacją ruchu.




- to dla Ciebie staramy się być najlepsi, a Twoje zdanie bardzo nam w tym pomoże!